SERVICES
Engineering Services - Including Retrofitting
MIDWATER is an expert provider of engineering services for water treatment systems used in industrial, commercial and municipal applications. MIDWATER will evaluate your equipment and offer repair/replace/retrofit recommendations on any water treatment system by any manufacturer.
MIDWATER is a uniquely qualified provider of water treatment engineering services with long years of service experience and vast technical knowledge on many different types of equipment and systems. MIDWATER engineering service for your filtration system, water softener, deionizer/Demineralizer, or Dealkalizer involves:
- A professional field evaluation of your system by our experienced staff.
- A repair/replace/retrofit recommendation.
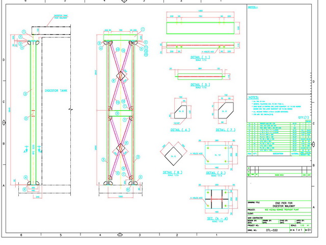
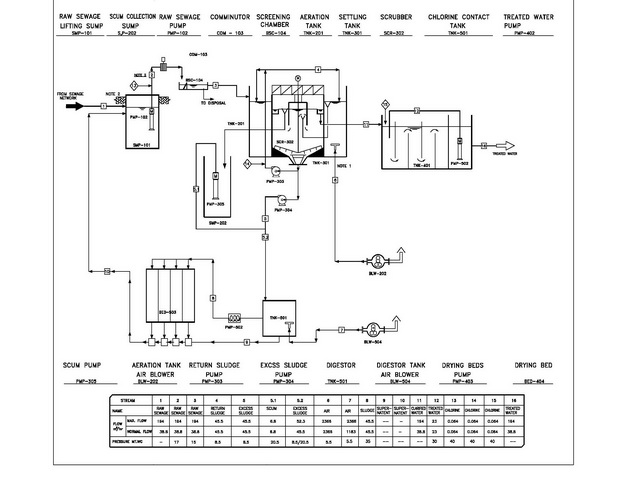
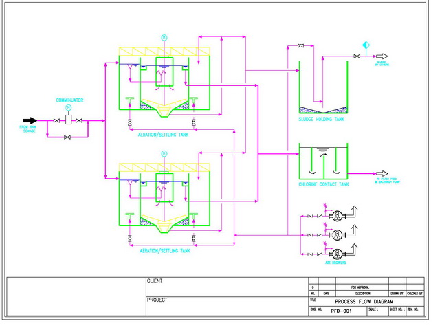
- Detailed CAD drawings of the recommendations for review.














